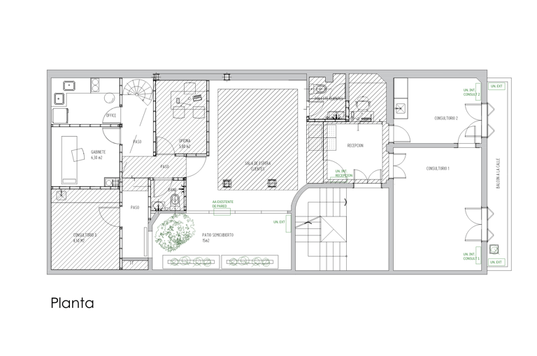
Clínica Estética